University Letter

UND's faculty and staff newsletter

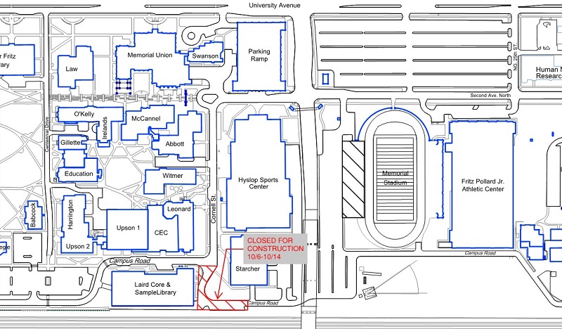
Campus Road will close southwest of Starcher Hall starting Oct. 13

Beginning Wednesday, Oct. 13,  contractors will begin repair work on campus road southwest of Starcher Hall. The work is expected  to be completed by Oct. 21. During that time, Campus Road will be closed to through traffic.